Gå till innehåll
  • Tillbaka till hemsidan
  • Bostadssökande
    • Ledigt just nu
    • Lediga lägenheter
    • Lägenhetsförteckning
    • Kötidsstatistik
    • Tips på ledigt
    • Lediga bilplatser
    • Lediga förråd
    • Våra områden
    • Vanliga frågor
  • Mina sidor
    • Logga in
    • Registrera dig
    • Glömt lösenord
Bostaden Umeå
  • Tillbaka till hemsidan
  • Bostadssökande
  • Mina sidor
Logga in
Registrera dig
English
RSS
 
 
Hem / Bostadssökande / Rullstensgatan 176
  • Ledigt just nu
  • Lediga lägenheter
  • Lägenhetsförteckning
  • Kötidsstatistik
  • Tips på ledigt
  • Lediga bilplatser
  • Lediga förråd
  • Våra områden
  • Vanliga frågor

Rullstensgatan 176

  • Anmäl ditt intresse för detta objekt
  • Är du antagen/inskriven för studier vid Umeå Universitet, Sveriges Lantbruksuniversitet eller Yrkeshögskolan i Umeå kan du vara berättigad att söka studentbostad. Uppfyller du kraven? Läs här: Studentboende (umea.se)

    För att kunna anmäla intresse på studentbostad, behöver du först ladda upp giltigt studieintyg. Det gör du på Mina sidor.

 
/Global/DisplayMultimediaDescription.ashx?guid=ab85a575-e85e-4377-bf05-f7b71842bbb0
/Global/DisplayMultimediaDescription.ashx?guid=ab85a575-e85e-4377-bf05-f7b71842bbb0
/Global/DisplayMultimediaDescription.ashx?guid=333d490a-c5a3-487f-9608-ad096115829e

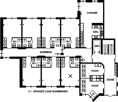
Viss avvikelse på planritningen kan förekomma. Skala och mått kan avvika från verkligheten.

  • Hustyp: Flervåningshus, tegelfasad
  • Våningsplan: Botten
  • Förråd: Rullstensgatan 174
  • Tvättstuga: På våningsplan
  • Hyra: Hushållsel ingår
  • Antal rum i korridor: 7
  • Möblerat: Ja
  • Kök: I korridoren
  • Dusch: I rummet
  • Allrum: I anslutning till köket
  • Avstånd till centrum/universitetet: Ca: 4 km/1 km

Information

  • 10 månaders hyra, juni - juli är hyresfria månader.
  • Studentbostad

Nydalahöjd

Nydala är beläget vid Nydalasjön som är en drygt tre kilometer lång sjö i utkanten av Umeå tätort. Kring sjön finns en campingplats, stigar, cykelvägar och grillplatser. Det finns dessutom tillgång till blåbär, lingon och svamp i skogen runt sjön.

Läs mer om området

Nydalahöjd
 

Dokument

  • Förklaringar objektdetaljsida
  • Tillträde: 2026-03-01
  • Tillgänglig från: 2026-02-01
  • Anmäl senast: 2025-12-30

Fakta


  • Område:
  • Nydalahöjd
  • Adress:
  • Rullstensgatan 176
  • Obj.nr:
  • 2802402010002
  • Rum:
  • Enkelrum, Stud 10Mån
  • Boyta:
  • 21 m²
  • Våning:
  • 0
  • Hyra:
  • 3 750 kr
  • Hiss:
  • Ja
  • Balkong/Uteplats:
  • Nej
  • Byggt:
  • 1995
  • Fastighet:
  • Flyttblocket 1
  • Byggnad:
AB Bostaden
Properties/

AB Bostaden bygger och förvaltar bostäder i Umeå kommun. Företagets historia sträcker sig från 1953, då det startade i stiftelseform. 1995 blev företaget ombildat till ett kommunalt allmännyttigt bolag med uppdrag att bidra till Umeå kommuns tillväxt och bostadsförsörjning.

Kontakt
  • 090-17 77 00
  • kundcenter@bostaden.umea.se
  • Östra Kyrkogatan 2, 901 06 Umeå
  • Fler kontaktuppgifter
Viktiga länkar
  • Om kakor
  • Webbplatsinformation
  • Visselblåsning
  • Om dina personuppgifter
Sociala medier
  • Facebook
  • Instagram